17 Vedi foto

€ 160.000,00

Ufficio in Vendita

Bedizzole

Ufficio in vendita a Bedizzole, Bedizzole - Centro

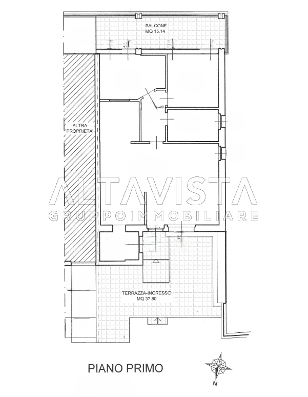
Altavista propone in vendita: ufficio al piano terra con ampio terrazzo a Bedizzole

In prossimità del centro di Bedizzole, in posizione strategica e comoda ai principali servizi.

La proprietà si apre su un terrazzo di circa 40 m², perfetto come area di accoglienza esterna o spazio di rappresentanza.

L'interno è composto da una zona open space con angolo reception o area operativa, due uffici indipendenti entrambi con accesso a un balcone spazioso, ripostiglio/archivio e bagno finestrato.

Completa la soluzione un ampio parcheggio posizionato direttamente di fronte all’ingresso.

L'immobile è affittato, con un canone annuo di €12.000,00, con scadenza fra 6 anni.

Una proposta ideale per studi professionali o attività che desiderano visibilità, funzionalità e spazi comodi in una zona centrale ma tranquilla.



Contattaci per maggiori informazioni o per organizzare una visita 0306870605



rif.: BZ2178.



Prezzo: € 160.000,00.



ALTAVISTA Gruppo Immobiliare precisa che nonostante l'attenzione nell'inserimento dei dati dell'annuncio proposto, potrebbero essere presenti errori e/o omissioni. Il presente annuncio è soltanto descrittivo e non rappresenta un impegno contrattuale, per tale motivo vi preghiamo di contattarci per verificare la disponibilità dell'immobile e dei dati inseriti. Siamo a disposizione per la visione dell'immobile previo appuntamento.
Rif.
bz2178 - bedizzole
Indirizzo
Bedizzole, Via Rimembranze
Camere:
No
Totale piani:
non specificato
Categoria:
Ufficio
Micro categoria:
IPE:
175 kWh/m3anno
Età:
-
Bagni:
No

Bisogno di aiuto? Scrivici!
Un nostro agente ti ricontatterà senza impegno.

* Campi obbligatori