30 Vedi foto

€ 380.000,00

Appartamento in Vendita

Brescia

Appartamento trilocale in vendita a Brescia, Buffalora

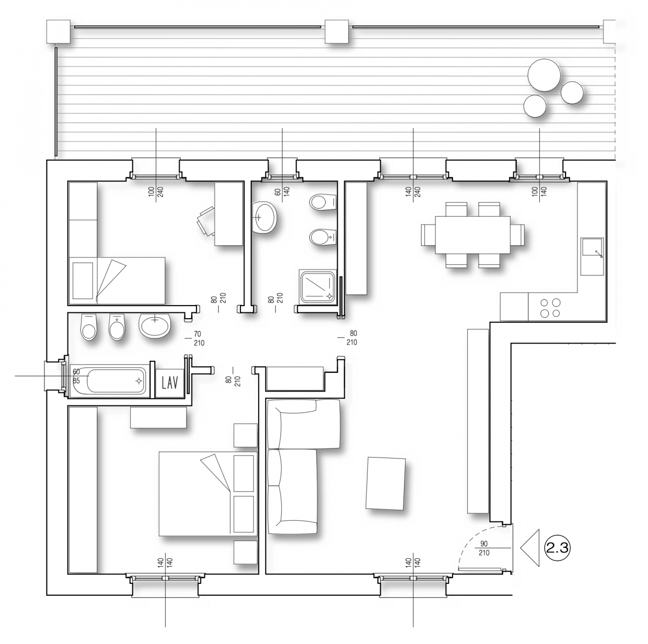
ALTAVISTA Gruppo Immobiliare è lieta di presentare in vendita a Brescia, in una zona comoda ai servizi e alle vie di comunicazione, un nuovo appartamento trilocale secondo ed ultimo piano.

Caratterizzato da un'architettura moderna e funzionale, l'appartamento vanta un'ampia loggia con travi a vista, perfetta per godersi momenti di relax e divertimento. All'interno, una spaziosa zona giorno accoglie una cucina pranzo e un luminoso soggiorno, entrambi con accesso diretto alla loggia esclusiva di circa 30 mq. Nel soggiorno ben si individua la zona per un comodo divano e una grande parete attrezzata, oltre alla zona del pranzo, mentre l'ampia cucina a vista è una bella sorpresa, dopo il soggiorno e la zona del pranzo.

Un disimpegno conduce alla zona notte, dove si trova un primo bagno con doccia, camera matrimoniale, seconda camera e secondo bagno con vasca.

L'esposizione solare è ottima, garantendo una splendida illuminazione naturale durante tutto il giorno. Inoltre, l'appartamento è dotato di moderne caratteristiche tecnologiche, come il riscaldamento e raffreddamento a pavimento con pompa di calore, la geotermia, la deumidificazione e l'uso di energia fotovoltaica per le parti comuni. Le tapparelle sono motorizzate e sono già state installate le zanzariere, assicurando la massima comodità.

Questa piccola palazzina di nuova realizzazione è stata costruita in classe A2, garantendo consumi energetici bassissimi e un'elevata efficienza. Inoltre, avrai la possibilità di personalizzare le finiture, come pavimenti, sanitari e porte, scegliendo direttamente dai rivenditori selezionati.

Per completare questa offerta nell'interrato si trova un comodo box doppio e una cantina.
Possibilità di scegliere le finiture, pavimenti, sanitari, porte ecc.

Prezzo: € 380.000,00

Non lasciarti sfuggire questa straordinaria opportunità di acquistare la casa dei tuoi sogni. Contattaci oggi stesso per prenotare una visita. Questa è un'opportunità unica per iniziare una nuova vita insieme in un ambiente di qualità e comfort.


Altavista Gruppo Immobiliare precisa che nonostante l'attenzione nell'inserimento dei dati dell'annuncio proposto, potrebbero essere presenti errori e/o omissioni. Il presente annuncio è soltanto descrittivo e non rappresenta un impegno contrattuale, per tale motivo vi preghiamo di contattarci per verificare la disponibilità dell'immobile e dei dati inseriti. Siamo a disposizione per la visione dell'immobile previo appuntamento.
Rif.
RZ5066 - rezzato
Indirizzo
Brescia, Brescia Via Balardini
Camere:
2
Cantina:
Si
Garage doppio:
Si
Riscaldamento a pavimento:
Si
Soggiorno con angolo cottura:
Si
Terrazzi:
1
Ultimo piano:
Si
Totale piani:
2
Nuovo:
Si
Predisposizione allarme:
Si
Pannelli fotovoltaici:
Si
Categoria:
Appartamento
Micro categoria:
Trilocale
IPE:
175 kWh/m2anno
Età:
2021
Bagni:
2
Stato manutenzione:
ottimo
Numero locali:
3
Riscaldamento termopompa:
Si
Raffreddamento:
Si
Tapparelle motorizzate:
Si
Porta blindata:
Si
Numero accessi carrai:
Si
Zanzariere:
Si
Impianto elettrico:
a norma

Bisogno di aiuto? Scrivici!
Un nostro agente ti ricontatterà senza impegno.

* Campi obbligatori