20 Vedi foto

€ 240.000,00

Capannone in Vendita

Bedizzole

Capannone in vendita a Bedizzole, Bedizzole

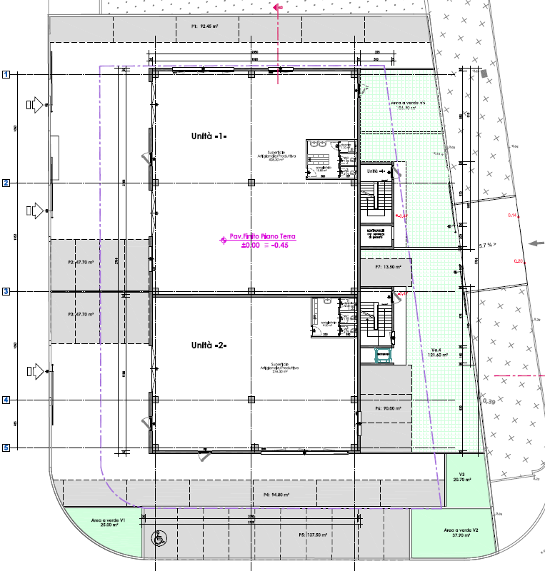
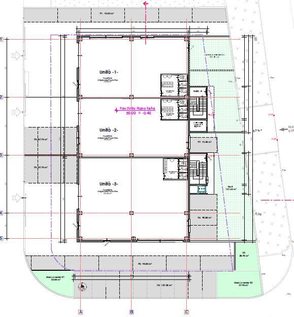
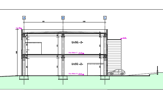
Altavista Bedizzole propone: In pronta consegna, capannone di 340m² e con altezza di 4,10m.
Sito al piano primo e inserito in un edificio di sole quattro unità, il capannone ha la predisposizione per vano montacarichi e ascensore.
Accettiamo prenotazioni per superfici commerciali, artigianali, laboratori e magazzini;
Si valutano richieste specifiche e finiture personalizzate, in pronta consegna al rustico.
Rif.
bz2070 - bedizzole
Indirizzo
Bedizzole, via caselle
Camere:
No
Terrazzi:
1
Primo piano:
Si
Totale piani:
non specificato
Categoria:
Capannone
Micro categoria:
IPE:
175 kWh/m3anno
Età:
2023
Bagni:
No
Stato manutenzione:
nuovo

Bisogno di aiuto? Scrivici!
Un nostro agente ti ricontatterà senza impegno.

* Campi obbligatori